Share

Flat Lap Panel Details – DWG

Flat Lap Panel Details – DWG

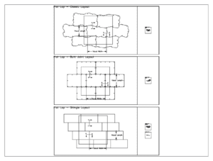
See detail drawings for Zahner’s Flat Lap Panel System.

Detail drawings include: shingle & alternate shingle systems, shingle elevation, flat lap system, flat lap elevation, butt joint system, and butt joint elevation.

File Type: dwg
File Size: 108 KB
Tags: Flat Lap Panel, DWG

More From the Blog

Innovation in Four Dimensions: Zahner Research Team Presents at AECtech

Innovation in Four Dimensions: Zahner Research Team Presents at AECtech

LEARN MORE
Celebrating the Extraordinary Life & Works of Frank Gehry (1929–2025)

Celebrating the Extraordinary Life & Works of Frank Gehry (1929–2025)

LEARN MORE
How LUCE et Studio Architects Blends Story, Architecture, and Materials to Build Things That Matter

How LUCE et Studio Architects Blends Story, Architecture, and Materials to Build Things That Matter

LEARN MORE
Shadow and Shine: A Primer on Blackened Steel in Architectural Design

Shadow and Shine: A Primer on Blackened Steel in Architectural Design

LEARN MORE
Exploring the Experimental Edge: HKS and Zahner Reimagine What’s Possible

Exploring the Experimental Edge: HKS and Zahner Reimagine What’s Possible

LEARN MORE